Sales office opening times
- Monday to Friday, 9am – 5.30pm
- Saturday: By appointment only
Join us at your nearest village for an exclusive Downsizing Event, complete with afternoon tea and expert insights from specialist partners.
At 6 Audley villages near you (Bristol, London, Surrey, Buckinghamshire, Leamington Spa, Leeds)
Daily from Monday 2nd to Friday 6th February - 12.30 - 2.30pm
For more details please call:
01784 557 376Cooper's Hill, Englefield Green, Surrey
£675,000
MMF and DMC fees apply
Available
For sale
For more details please call:
01784 557 376Cooper's Hill, Englefield Green, Surrey
Available
For sale
For more details please call:
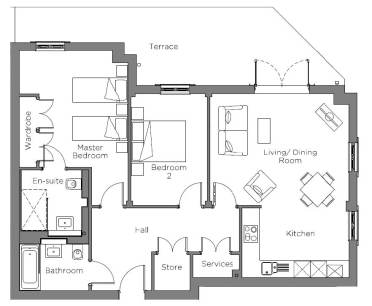
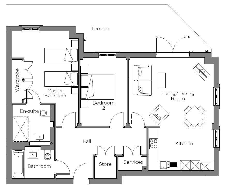
01784 557 376A beautifully appointed apartment located on the first floor of Pembroke Court, with a dual aspect boasting woodland views and a generous balcony accessed via the lounge.
Conveniently situated for all amenities including Langton's restaurant, bar/bistro, library and the Audley Club.
Audley is acting on behalf of the Audley owner or vendor to sell this property.
Audley Cooper's Hill luxury retirement village is located within the 66 acres of Magna Carta Park, in the village of Englefield Green, near Runnymede in Surrey.
Recently opened, the luxury village comprises 128 retirement properties, while the main building – formerly part of Brunel University – houses the Audley Club health and fitness suite, tennis courts, putting green, restaurant and library.
ADDITIONAL AMENITIES: As an owner at Audley Cooper's Hill you will automatically become a member of the Audley Club. This entitles you to use the facilities, including the restaurant, bistro bar, health and wellbeing centre, fitness suit, swimming pool, tennis court and putting green. There are also regular owners-only swimming sessions and an owners' library.
Please note that a monthly management charge and deferred fees apply to all properties in an Audley village [read more about fees].
Images used are of the Cooper’s Hill show apartment and are for illustration purposes only. Please arrange a viewing with the Sales Team.
Audley is acting on behalf of the Audley owner or vendor to sell this property.
Audley Cooper’s Hill
Cooper's Hill Lane
Englefield Green
Surrey
TW20 0LJ
Call us: 01784 557 376
Email us: Cooperssales@audleyvillages.co.uk
TENURE: Leasehold for a term of up to 250 years from 2019. If you would like to bring a car, there is an annual car parking charge of £628.06 per space.
Monthly fee of £1,320.67 for the year ending 01 March 2026.
Audley owners have our firm undertaking that their monthly management fee will increase only once a year. A deferred management charge also applies to this property. This charge is payable on change of occupier and based on the final achieved sale price or the open market value, whichever is greater. Option 1: 1% per year or part-year up to a maximum of 15 years (15%). Option 2: 2% per year or part-year up to a maximum of 15 years (30%). Options 1-2 correspond to Options 1-2 for the Monthly Management Fee.
More information on deferred management fees
GENERAL The measurements in these particulars are approximate and have been provided for guidance purposes only. The internal photographs used in these particulars are reproduced for general information and it cannot be inferred that any item is included in the sale.
PLEASE NOTE The extent of the property and its boundaries are subject to verification by inspection of the title deeds. All properties are covered by a Premier guarantee for 10 years.
Please note that a monthly management charge and deferred fees apply to all properties in an Audley village. Full details are available from the village. Ask a question
Flexible Audley Care packages are available at an additional cost.