Aerial view of a large stone mansion surrounded by expansive green lawns, trees, and countryside under a clear blue sky.

Contact Luscombe Maye for details

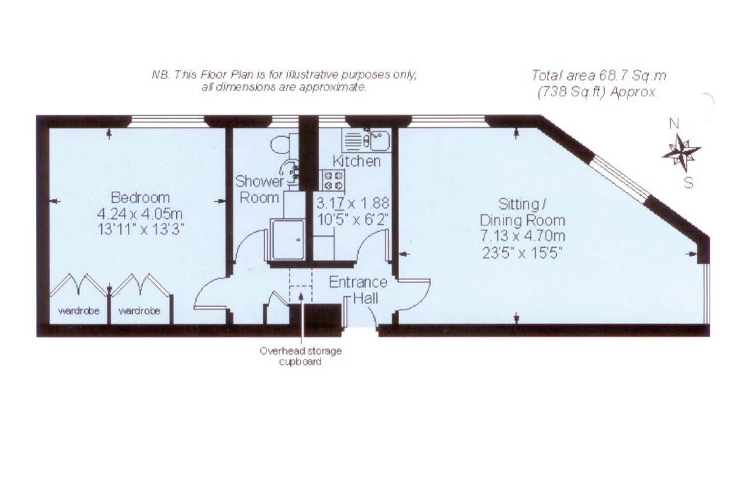
SECOND FLOOR APARTMENT

Apartment 17 is located on the second floor, offering level access and stairs which have a stair lift. The apartment can also be accessed from the grand main entrance.

The apartment is light and spacious and offers superb views across this historic estate and also to the neighbouring woods and countryside.

The property comprises an entrance hall with storage, a fully fitted kitchen with integrated appliances and a dual aspect lounge/dining room with open views across the neighbouring countryside. There is a fitted bathroom with shower and a large double bedroom with fitted wardrobes. 

Property specifications

  • One Bedroom apartment set within magnificent grade I listed country house
  • Large living room with lovely views
  • Twelve acres of manicured grounds
  • Allocated parking
  • 24 hour on site staffing
  • Kitchen with integrated appliances
  • Countryside walks on the doorstep and walking distance to the beach
  • Area of outstanding natural beauty
  • Ideal permanent home or lock up and leave
  • No onward chain

Luscombe Maye are acting on behalf of the property owner or vendor to sell this property. Call 01548 830831 for more information or to book an appointment.

 

View other properties for sale at Flete House

About Flete House

Set deep in the rolling hills of South Hams in Devon, Flete House overlooks the attractive Erme Estuary and Dartmoor National Park. For shops, you are close to the picturesque town of Modbury, the bustling town of Ivybridge and the city of Plymouth. Facilities include:

  • DINING ROOM: A warm welcome awaits in our elegant panelled dining room which offers a regular luncheon service.
  • DRAWING ROOM: Sit and relax in this elegant room, chat with friends or take part in our social events.
  • LIBRARY: Browse through a wide range of books or take time doing a jigsaw.
  • LEISURE FACILITIES: As well as the onsite amenities listed below there are a number of golf courses, a swimming pool and health clubs nearby.
  • GUEST SUITE: You can accommodate visiting friends and family in our beautiful guest suite.
  • BILLIARD ROOM: This beautiful Gothic room houses a full-sized table for all to use and enjoy social interaction.
  • TENNIS COURT: This hard-surfaced tennis court is available to all our residents.
  • CROQUET LAWN: The house has a croquet lawn, which is kept maintained for use from spring until Autumn.
  • SECURITY: Flete House benefits from a 24 hour presence on site, giving you peace of mind.
  • GROUNDS: Our Italianate garden and grounds are tended for your enjoyment by our skilled ground staff.
  • CARE: At Flete House we work in partnership with a local care provider. Flexible care packages are available at an additional cost. Please contact the village for further information.

Please note

  • A service charge and deferred management charge (DMC) apply to all properties [read more about fees].
  • Due to the listed status of Flete House there is no swimming pool or health club available at this village. A limited dining service is available.

 

View other properties for sale at Flete House