Sales office opening times
- Monday to Friday 9am – 5.30pm
For more details please call:
01943 968074Clevedon, Ben Rhydding, West Yorkshire
£365,000
MMF and DMC fees apply
Available
For sale
For more details please call:
01943 968074Clevedon, Ben Rhydding, West Yorkshire
Available
For sale
For more details please call:
01943 968074
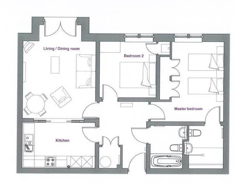
This ground floor apartment has beautiful views over the moors. It has an open plan kitchen/living room with pocket doors to separate the space.
There is a Juliet balcony with double doors looking out onto the view. The main bedroom has an en suite shower room and built-in wardrobes. There is a second bedroom and guest bathroom.
Audley is acting on behalf of the Audley owner or vendor to sell this property.
Audley Clevedon retirement village is set within 23 beautiful acres of landscaped grounds on the edge of the Dales.
Ilkley town centre offers an excellent range of high class shops, restaurants, cafes and everyday amenities including two supermarkets, health centre, playhouse and library. There are good sporting and recreational facilities. Situated within the heart of the Wharfe Valley, surrounded by the famous Moors to the south and the River Wharfe to the north.
At the centre of the village you will find Clevedon House. What was once a Victorian schoolhouse for boys is now the carefully restored centrepiece building, housing a range of amenities including a restaurant, bistro bar, lounge, library, health and wellbeing centre, fitness suite and swimming pool.
The accommodation is appointed to a very high standard with Siematic kitchen fittings, Neff and Bosch appliances and Villeroy & Boch sanitary ware.
ADDITIONAL AMENITIES As an owner at Audley Clevedon you will automatically become a member of the Audley Club. This membership entitles you to use the facilities, including the restaurant, bistro bar, health and wellbeing centre, fitness suite and swimming pool.
Flexible care packages are available through Audley Care if required.
TENURE Leasehold for a term of up to 125 years. There is an annual ground rent of £250. The management charge varies depending on the lease of this resale property, check with your sales team for more details. A deferred management charge also applies to this property, please click here to find out more.
GENERAL The measurements in these particulars are approximate and have been provided for guidance purposes only. The internal photographs used in these particulars are reproduced for general information and it cannot be inferred that any item is included in the sale.
PLEASE NOTE The extent of the property and its boundaries are subject to verification by inspection of the title deeds.
Please note that a monthly management charge and deferred fees apply to all properties in an Audley village. Read more about fees.
Audley Clevedon
Ben Rhydding Drive
Ben Rhydding
West Yorkshire
LS29 8AQ
Call us: 01943 968074
Email us: clevedonsales@audleyvillages.co.uk
Leasehold for a term of up to 125 years from 2008. There is an annual ground rent of £250. The current management charge (for the year ending 1st March 2027) is £1,243.78 per calendar month.
Audley owners have our firm undertaking that their monthly management fee will increase only once a year. A deferred management charge also applies to this property. This charge is payable on change of occupier and based on the final achieved sale price or the open market value, whichever is greater. 0.75% first year or part-year then 0.25% every year after, capped at 15 years OR 1% per year or part-year up to a maximum of 15 years (15%), option dependent on property, as per the lease.
The measurements in these particulars are approximate and have been provided for guidance purposes only.
The internal photographs used in these particulars are reproduced for general information and it cannot be inferred that any item is included in the sale.
The extent of the property and its boundaries are subject to verification by inspection of the title deeds.
Flexible Audley Care packages are available at an additional cost.