Sales office opening times
- Monday to Friday, 9am – 5.30pm
For more details please call:
01684 438450Ellerslie, Malvern, Worcestershire
£399,999
MMF and DMC fees apply
Available
For sale
For more details please call:
01684 438450Ellerslie, Malvern, Worcestershire
Available
For sale
For more details please call:
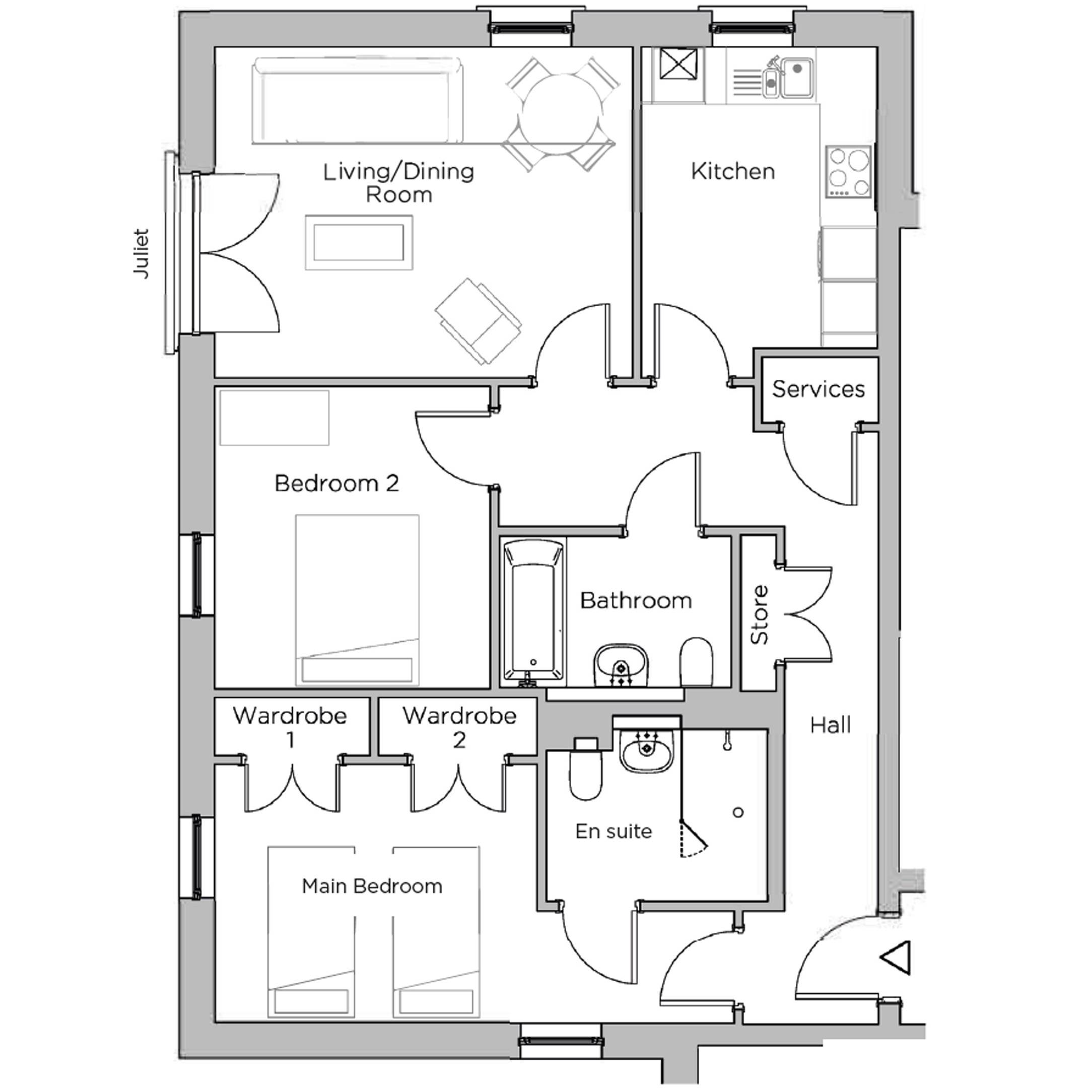
01684 438450A fabulous apartment boasting bright, south-facing views and featuring a separate kitchen and spacious living/dining room with views from all windows. Plus, there’s elegant French doors opening onto a Juliet balcony.
The property is ideally positioned close to the main house and its excellent facilities.
Audley is acting on behalf of the Audley owner or vendor to sell this property.
Nestled on the edge of the breathtaking Malvern Hills, in the town of Great Malvern, lies Audley Ellerslie retirement village. Three magnificent Victorian mansions stand within the village, each restored and expertly converted into luxury apartments. Surrounding these are a number of beautiful new-build properties including luxury cottages.
Ellerslie House is home to the Audley Club, with its health club, swimming pool, library and restaurant overlooking the Severn Valley.
ADDITIONAL AMENITIES: As an owner at Audley Ellerslie you will automatically become a member of the Audley Club. This entitles you to use the facilities, including the restaurant, bistro bar, health and wellbeing centre, fitness suite and swimming pool. There are also regular owner-only swimming sessions and an owners' library.
Please note that a monthly management charge and deferred fees apply to all properties in an Audley village [read more about fees].
Audley Ellerslie
Abbey Road
Malvern
Worcestershire
WR14 3HL
For Sat Navs: WR14 3HL
Call us: 01684 438450
Email us: ellersliesales@audleyvillages.co.uk
TENURE
Leasehold for a term of up to 250 years from 2017. The management charge for the year ending 1st March 2027 is £1386.41 per calendar month.
Audley owners have our firm undertaking that their monthly management fee will increase only once a year. A deferred management charge also applies to this property. This charge is payable on change of occupier and based on the final achieved sale price or the open market value, whichever is greater. Option 1: 1% per year or part-year up to a maximum of 15 years (15%). Option 2: 2% per year or part-year up to a maximum of 15 years (30%), Options 1-2 correspond to Options 1-2 for the Monthly Management Fee, option dependent on property, as per the lease.
GENERAL
The measurements in these particulars are approximate and have been provided for guidance purposes only. The internal photographs used in these particulars are reproduced for general information and it cannot be inferred that any item is included in the sale.
PLEASE NOTE
The extent of the property and its boundaries are subject to verification by inspection of the title deeds.
Flexible Audley Care packages are available at an additional cost.