TWO BEDROOM, SECOND FLOOR APARTMENT

Located on the second floor of Mackenzie Place this triple-aspect apartment features two Juliet balconies in the open plan living and kitchen area creating a light and airy space. 

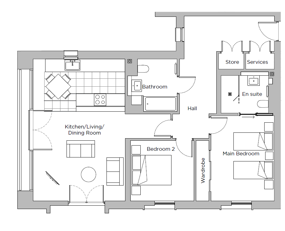
The main bedroom benefits from fitted wardrobes and en suite shower room. There is an additional guest bedroom and bathroom with Villeroy & Boch sanitaryware.

Property specifications

  • Dual-aspect open plan apartment with two Juliet balconies in the living/kitchen area
  • Modern SieMatic kitchen with integrated appliances
  • Spacious hallway with storage
  • Main bedroom with fitted wardrobes and en suite shower room
  • Second double bedroom
  • Additional guest bathroom with Villeroy & Boch sanitaryware
  • Second floor with lift access
  • Carpeted and decorated throughout
  • Membership to Audley Club

Kitchens

  • Fully fitted SieMatic handleless kitchen units
  • Corian worktops
  • Integrated Bosch washer dryer
  • Integrated cooking appliances including Neff fan assisted oven and ceramic hob, auto sense extractor fan, microwave and dishwasher
  • Under unit kitchen lighting
  • Coloured glass splashback to hob
  • Soft door and drawer closers
  • Fully integrated fridge/freezer
  • Stainless steel bowl and a half inset sink with mixer tap spray head
  • Minoli ceramic floor tiles

Bathrooms & ensuite

  • Elegant white Villeroy & Boch sanitary ware and Hansgrohe fittings
  • Minoli ceramic tiles to full height behind sink, WC, bath and shower areas
  • Walk-in shower with level access (en-suite bathrooms)
  • Bathroom cabinets with shaver points
  • Chrome heated towel rail
  • Glass screens to shower areas with Hansgrohe shower controls

Internal finishes

  • Double glazed windows
  • Painted white internal doors with chrome ironmongery
  • Integral wardrobe to main bedroom
  • Carpet to hall, living/dining areas and bedrooms
  • Ceramic floor tiles to kitchen, bathroom and en-suite

Lighting, heating & electrical

  • Recessed down-lighting in kitchen, bathroom and en-suite
  • Pendant lighting in living areas and bedrooms
  • Chrome sockets and switches with black inserts in kitchen (white to remaining areas)
  • Wiring for TV, FM and satellite signals to living/dining room and looped to main bedroom
  • Continuous extract ventilation to kitchen and bathroom(s)
  • Telephone connection points in the living room and main bedroom
  • Boilers feeding warm water underfloor heating

Security & safety

  • Emergency call system
  • Smoke detector
  • Heat detector
  • Intruder alarm operated via a key pad in the hall and PIRs

Sustainability features

  • Low energy lighting
  • A & B rated appliances to kitchen
  • Combined heat and power unit contributes to heating and hot water provision for the whole site

About Audley Sunningdale Park

Audley Sunningdale Park is home to 103 one, two and three bedroom luxury houses and apartments located within 16 acres of green parkland, some of which are conversions within the historic mansion building, stables and lodge.

ADDITIONAL AMENITIES 

At the centre of the village is the Audley Club, which includes a heated swimming pool, gym, health club, library, Kempton's restaurant and bar bistro. As an owner at Audley Sunningdale Park, you will automatically become a member of the Audley Club.

Please note that a monthly management charge and deferred fees apply to all properties in an Audley village. Read more about fees.