Sales office opening times
- Monday to Friday 9am – 5.30pm
- Saturday 10am – 4pm.
For more details please call:
01794 878 224Stanbridge Earls, Romsey, Hampshire
£579,950
MMF and DMC fees apply
Sold subject to contract
For more details please call:
01794 878 224Stanbridge Earls, Romsey, Hampshire
Sold subject to contract
For more details please call:
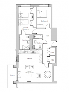
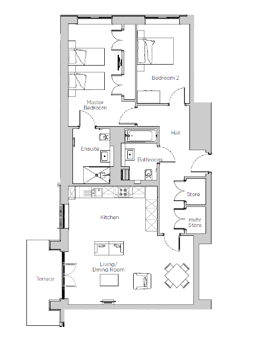
01794 878 224This beautifully designed apartment offers contemporary comfort and practicality within the peaceful surroundings of Stanbridge Earls Retirement Village.
Thoughtfully laid out, the home provides elegant living spaces, modern conveniences, and private outdoor relaxation. The main bedroom has double built-in wardrobes, an ensuite shower room and there is a guest WC, both with Villeroy & Boch sanitaryware.
Living room and kitchen 6.58m x 6.23m (21’7” x 20’5”)
Main Bedroom 5.39m x 3.51m (17’8” x 11‘6”)
Bedroom 2 4.19m x 2.76m (13’9” x 9’1”)
Terrace 4.50m x 1.84m (14’9” x 6’0)
Audley is acting on behalf of the Audley owner or vendor to sell this property.
Audley Stanbridge Earls luxury retirement village is set within 32 acres of beautiful woodland in the market town of Romsey, in Hampshire. At its centre is a Grade II* listed Tudor manor house, sympathetically restored to house an exceptional restaurant, bar and bistro. This, along with the nearby luxury health club and swimming pool, forms the Audley Club.
ADDITIONAL AMENITIES: As an owner at Audley Stanbridge Earls you will automatically become a member of the Audley Club. This entitles you to use the facilities, including the restaurant, bistro bar, health and wellbeing centre, fitness suite and swimming pool. There are also regular owners-only swimming sessions and an owners' library.
Please note that a monthly management charge and deferred fees apply to all properties in an Audley village [read more about fees].
Audley Stanbridge Earls
Mortimer Drive, Off Stanbridge Lane
Romsey
Hampshire
SO51 0DW
For Sat Navs: Please note: The entrance at Old Salisbury Lane is now closed permanently. Please enter via Stanbridge Lane.
Call us: 01794 878 224
Email us: stanbridgesales@audleyvillages.co.uk
TENURE: Leasehold for a term of up to 250 years from 2019. The monthly management fee for the year ending 1st March 2026 is £653.49 per calendar month.
Audley owners have our firm undertaking that their monthly management fee will increase only once a year. A deferred management charge also applies to this property. This charge is payable on change of occupier and based on the final achieved sale price or the open market value, whichever is greater. Option 1: 1% per year or part-year up to a maximum of 15 years (15%). Option 2: 2% per year or part-year up to a maximum of 15 years (30%). Option dependent on property, as per the lease.
If you wish to bring your car, there is an annual cost of £251.23 per annum for a space.
GENERAL: The measurements in these particulars are approximate and have been provided for guidance purposes only. The fixtures, fittings and appliances have not been tested and therefore no guarantee can be given that they are in working order. The internal photographs used in these particulars are reproduced for general information and it cannot be inferred that any item is included in the sale.
PLEASE NOTE: The extent of the property and its boundaries are subject to verification by inspection of the title deeds. All properties are covered by a Premier guarantee for 10 years.
Please note that a monthly management charge and deferred fees apply to all properties in an Audley village. Full details are available from the village. Ask a question
Flexible Audley Care packages are available at an additional cost.