Sales office opening times
- Monday to Friday, 9am – 5.30pm
- Weekends by appointment only.
For more details please call:
01275 404000Redwood, Failand, Bristol
£549,995
MMF and DMC fees apply
Sold subject to contract
For more details please call:
01275 404000Redwood, Failand, Bristol
Sold subject to contract
For more details please call:
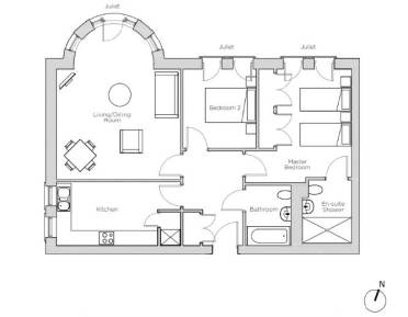
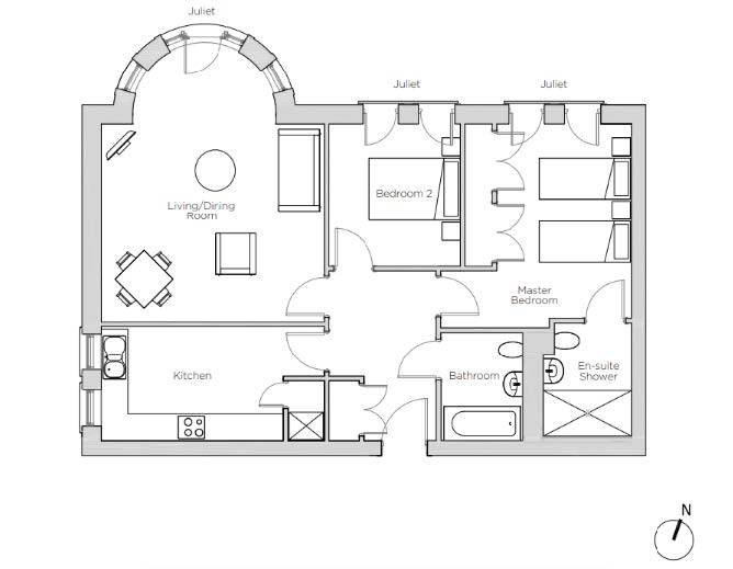
01275 404000This two-bedroom apartment offers a generous living and dining area featuring a charming bay window with a Juliet balcony overlooking the village.
The main bedroom includes fitted wardrobes and an ensuite with a walk-in shower, while the second bedroom is served by a separate bathroom accessed from the spacious hallway.
Audley is acting on behalf of the Audley owner or vendor to sell this property.
Audley Redwood retirement village is set within acres of landscaped parkland and is a short drive from the bustling city of Bristol.
Just minutes from historic Clifton and the spectacular North Somerset coast, there are breathtaking scenes, right on your doorstep.
Surrounded by beautiful green landscape, Audley Redwood comprises of 106 luxury apartments and 20 cottages, offering one, two or three bedrooms, all built to perfectly complement the local Georgian architecture. At the heart of the village is Redwood Hall, home to the Audley Club with its library, restaurant and luxury health club where our steam room and sauna can be used for relaxation.
ADDITIONAL AMENITIES: As an owner at Audley Redwood you will automatically become a member of the Audley Club. This membership entitles you to use the facilities, including the restaurant, bistro bar, health and wellbeing centre, fitness suite and swimming pool. There are also regular owners-only swimming sessions and an owners' library.
PLEASE NOTE: A monthly management fee, deferred management charge and ground rent apply to this property.
Audley is acting on behalf of the Audley owner or vendor to sell this property.
Audley Redwood
Beggar Bush Lane
Failand
Bristol
BS8 3TG
Call us: 01275 404000
Email us: redwoodsales@audleyvillages.co.uk
TENURE:
The leasehold is for a term of up to 125 years. Monthly management fee for the year ending March 2026 - £699.73.
Flexible Audley Care packages are available at an additional cost.
Audley owners have our firm undertaking that their monthly management fee will increase only once a year.
A deferred management charge also applies to this property. This charge is payable on change of occupier and based on the final achieved sale price or the open market value, whichever is greater. Option 1: 1% per year or part-year up to a maximum of 15 years (15%). Option 2: 2% per year or part-year up to a maximum of 15 years (30%). Options 1-2 correspond to Options 1-2 for the Monthly Management Fee, option dependent on property, as per the lease.