Sales office opening times
- Monday to Friday 9am – 5.30pm.
For more details please call:
01926 258 049Binswood, Royal Leamington Spa, Warwickshire
£450,000
MMF and DMC fees apply
Available
For more details please call:
01926 258 049Binswood, Royal Leamington Spa, Warwickshire
£450,000
MMF and DMC fees apply
Available
For more details please call:
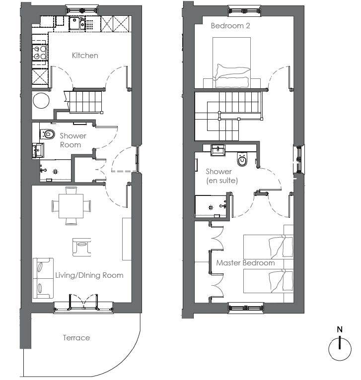
01926 258 049This spacious and inviting cottage features a bright, sunny living / dining room with patio doors leading to a private terrace, close to the main gardens. Downstairs there is a spacious cloakroom with wet room and a Siematic Kitchen with Neff and Bosch appliances.
The main bedroom benefits from built in wardrobes and the second double bedroom is a flexible space which can be used as an office if required. The bathroom is accessed from both bedrooms.
The cottage is well presented throughout with new carpets and there is a parking space available if required. Easy access to Binswood Hall and the village facilities.
Audley is acting on behalf of the Audley owner or vendor to sell this property.
Audley Binswood retirement village is located in the heart of the Royal Leamington Spa conservation area. It’s a short walk from the shopping and leisure facilities of Leamington Spa, including the famous Pump Rooms.
At the heart of the village is Binswood Hall, originally built as a private school in 1847. This Grade II* listed Victorian Gothic hall has been beautifully restored and forms the centrepiece of the retirement village. Built to the usual Audley standards, it retains all of the character and majesty of the original building.
Binswood Hall is also home to the Audley Club, with its own luxury health club, swimming pool, library, restaurant and bistro bar.
ADDITIONAL AMENITIES: As an owner at Audley Binswood you will automatically become a member of the Audley Club. This membership entitles you to use the facilities, including the restaurant, bistro bar, health and wellbeing centre, fitness suite and swimming pool. There are also regular owners-only swimming sessions and an owners' library.
PLEASE NOTE: A monthly management fee, deferred management charge and ground rent apply to this property.
Audley is acting on behalf of the Audley owner or vendor to sell this property.
Audley Binswood
Binswood Avenue
Royal Leamington Spa
Warwickshire
CV32 5SE
For Sat Navs: CV32 5SE
What3words: ///switch.bunks.tried
Call us: 01926 258 049
Email us: binswoodsales@audleyvillages.co.uk
TENURE
Leasehold for a term of up to 125 years. There is an annual ground rent of £500. The current management fee for this property is £1158.03 per calendar month (for the year ending 01 March 2026).
Parking: 145.36
Bistro credit: £85.79
Audley owners have our firm undertaking that their monthly management fee will increase only once a year. A deferred management charge also applies to this property. This charge is payable on change of occupier and based on the final achieved sale price or the open market value, whichever is greater. 1% per year or part-year up to a maximum of 15 years (15%).
GENERAL
The measurements in these particulars are approximate and have been provided for guidance purposes only.
The fixtures, fittings and appliances have not been tested and therefore no guarantee can be given that they are in working order.
The internal photographs used in these particulars are reproduced for general information and it cannot be inferred that any item is included in the sale.
PLEASE NOTE
The extent of the property and its boundaries are subject to verification by inspection of the title deeds.
Flexible Audley Care packages are available at an additional cost.