Sales office opening times
- Monday to Friday 9am – 5.30pm.
Join us at your nearest village for an exclusive Downsizing Event, complete with afternoon tea and expert insights from specialist partners.
At 6 Audley villages near you (Bristol, London, Surrey, Buckinghamshire, Leamington Spa, Leeds)
Daily from Monday 2nd to Friday 6th February - 12.30 - 2.30pm
For more details please call:
01926 258 049Binswood, Royal Leamington Spa, Warwickshire
£420,000
MMF and DMC fees apply
Available
For sale
For more details please call:
01926 258 049Binswood, Royal Leamington Spa, Warwickshire
Available
For sale
For more details please call:
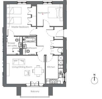
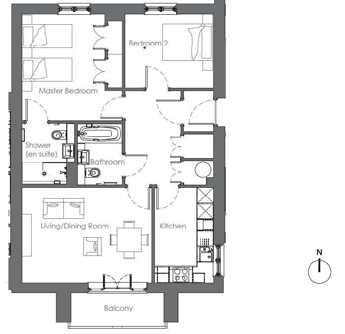
01926 258 049This well laid out ground floor apartment features a bright, sunny living / dining room with patio doors leading to a private enclosed terrace, close to the main gardens. The SieMatic Kitchen is equipped with Neff and Bosch appliances including a washer/dryer, microwave/oven/grill and full size oven, dishwasher and fridge freezer.
The main bedroom benefits from built in wardrobes and the second double bedroom is a flexible space which can be used as an office if required.
There is an ensuite wetroom with the main bedroom and a separate guest bathroom. The apartment is well presented throughout with new carpets and there is a parking space available if required. Easy access to Binswood Hall and the facilities.
Audley is acting on behalf of the Audley owner or vendor to sell this property.
Audley Binswood retirement village is located in the heart of the Royal Leamington Spa conservation area. It’s a short walk from the shopping and leisure facilities of Leamington Spa, including the famous Pump Rooms.
At the heart of the village is Binswood Hall formerly known as North Leamington College. This Grade II* listed Victorian Gothic hall has been beautifully restored and forms the centrepiece of the retirement village. Built to the usual Audley standards, it retains all of the character and majesty of the original building. Binswood Hall is also home to the Audley Club, with its own luxury health club, swimming pool, library, restaurant and bistro bar.
ADDITIONAL AMENITIES As an owner at Audley Binswood you will automatically become a member of the Audley Club. This membership entitles you to use the facilities, including the restaurant, bistro bar, health and wellbeing centre, fitness suite and swimming pool. There are also regular owners-only swimming sessions and an owners' library.
Please note that a monthly management charge and deferred fees apply to all properties in an Audley village. Read more about fees.
Audley Binswood
Binswood Avenue
Royal Leamington Spa
Warwickshire
CV32 5SE
For Sat Navs: CV32 5SE
What3words: ///switch.bunks.tried
Call us: 01926 258 049
Email us: binswoodsales@audleyvillages.co.uk
TENURE Leasehold for a term of 125 years. The current management charge for the year ending 1st March 2026 is £1,158.03 per calendar month, which includes a credit of £85.79 in the restaurant/ bistro bar. Parking: £145.36 per annum. Annual ground rent £500.
Audley owners have our firm undertaking that their monthly management fee will increase only once a year. A deferred management charge also applies to this property, This charge is payable on change of occupier and based on the final achieved sale price or the open market value, whichever is greater. 1% per year or part-year up to a maximum of 15 years (15%).
A deferred management charge also applies to this property. More information on deferred management fees.
GENERAL The measurements in these particulars are approximate and have been provided for guidance purposes only. The internal photographs used in these particulars are reproduced for general information and it cannot be inferred that any item is included in the sale.
Please note that a monthly management charge and deferred fees apply to all properties in an Audley village. Full details are available from the village. Ask a question
Flexible Audley Care packages are available at an additional cost.